WECOMXB Q5N, WECOMXB Q8N Elevator Light Curtain

WECOMXB Q Elevator Light Curtain

1.Performance Parameter

NO.

Items

Performance Parameter

1

Mpdel

WECOMXB-Q5N

WECOMXB-Q8N

2

Infra red dioeds range

48mm

3

Minimum detecting objection

≤50mm

4

Number of Infra red diode

36 Pair Diodes

40 Pair Diodes

5

Scanning beams

106-174beams

118-194beams

6

The highest detecting range

1665mm

1855mm

7

The lowest detecting range

20mm

8

Detecting range

0~4000mm

9

Response time

≤69ms

≤73ms

10

Recovery time

≤1.5s

11

Vertical tolerance

±15mm/7°

12

Horizontal tolerance

±3mm/5°

13

Output mode

1NO+1NC capacity 120VAC 1A
Malfunction: 1NC capacity 120VAC 1A

14

Working voltage

185—290VAC

15

Protection level

IP54

16

Light immunity

>100,000LUX

17

EMC

EN12015, EN12016

18

LED Interpretation

1)Red LED is light in receiver when shielded
2)Red LED is off in normal status

19

Powered LED Interpretation

1)Yellow LED indicator is in receiver
2)Yellow LED is light when powered

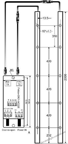
2.Beams Designing And Connection System
WECOMXB Q light curtainWECOMXB Q door detector

TX & RX distance less than 400 mm: 106beams / 118beams;TX & RX distance more than 400 mm: 174beams / 194beams.

WECOMXB Q5N Q8N SERIES elevator light curtain door detectors completely conform to EN 81-20 European standard.The details are:
1)The protective device shall cover the opening over the distance between at least 25mm and 1600mm above the car door sill;
2)The protective device shall be capable of detecting obstacles minimum of 50mm diameter;
3)The protective device may be rendered inoperative in the last 20mm of door closing;
4) In case of failure, or deactivation of the protective device, the kinetic energy of the doors shall be limited to 4J

<TOP>